Rückruf
Kontakt
Immobilien kaufen
Vermietete 1-Zimmer-Wohnung mit Balkon, verkehrsgünstig
Objektart
Eigentumswohnung (Etage)
Ort
Groß Kreutz (Havel) , OT Götz
Nutzfläche
ca. m²
Wohnfläche
ca. 37,64 m²
Baujahr
1995
Zimmer
1
Energieausweistyp
Bedarf
Energieeffizienzklasse
D
Endenergieverbrauch
121 kWh/m² p.a. (inkl. Warmwasser)
Kaufpreis
95.700 €
Maklercourtage
4.000,00 € (inkl. MwSt.) Käuferprovision
Beschreibung
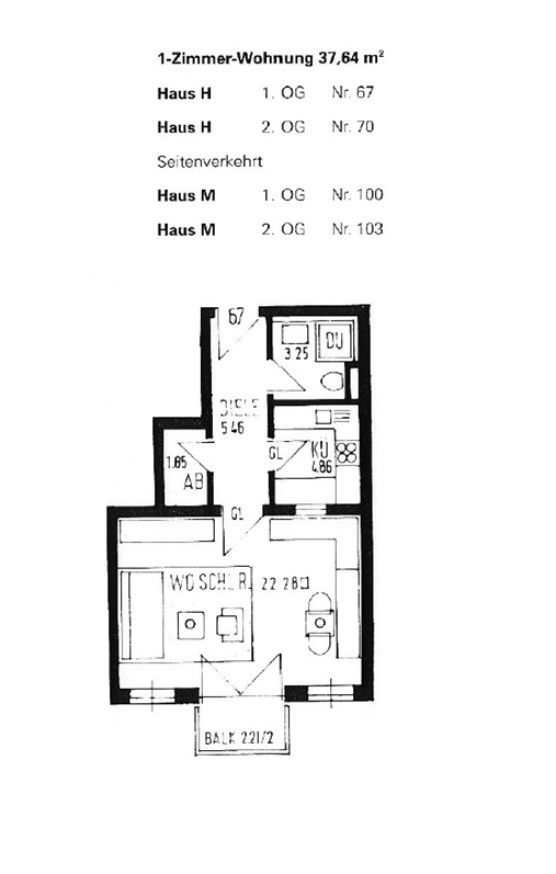
Diese 1-Zimmerwohnung befindet sich im zweiten Obergeschoss eines gepflegten Mehrfamilienhauses aus dem Jahr 1995 in Groß Kreutz (Havel) OT Götz. Mit einer Wohnfläche von 37,64 m² bietet die Immobilie eine solide Basis für eine attraktive Kapitalanlage. Die Wohnfläche ist ohne Balkon gerechnet.Die Raumaufteilung umfasst einen großzügigen Wohn- und Schlafbereich, eine separate Küche, ein Duschbad, eine Abstellkammer, einen Flur sowie einen Balkon. Das helle Wohn- und Schlafzimmer ist großzügig geschnitten, mit einer breiten Tür zum Balkon und großen Fenstern, die viel Tageslicht und eine angenehme Atmosphäre schaffen.
Zur Wohnung gehört ein geräumiger Kellerraum, der zusätzlichen Stauraum bietet.
Außerdem stehen den Mietern gemeinschaftlich ein Waschraum mit einer Waschmaschine, ein Trockenraum sowie ein Fahrradkeller zur Verfügung.
Parkplätze sind in unmittelbarer Nähe vorhanden, was die Lage zusätzlich attraktiv macht.
Das monatliche Kaltmiete beträgt 364,00 €. Das Hausgeld pro Monat beträgt 233,50 €.
In der Vergangenheit wurde im Haus eine Strangsanierung (Wasser) durchgeführt. Innerhalb der Wohnung ist noch eine Erneuerung der verzinkten Stahlrohre im Trinkwasserbereich vorzunehmen.
Diese Immobilie stellt eine solide Investition in einer aufstrebenden Region dar, mit guten Vermietungschancen und Potential für stabile Erträge.
Ausstattung
- 1-Zimmer-Wohnung im 2. OG mit Wohn-, Schlafzimmer, Küche, Duschbad, Abstellkammer und Flur
- Balkon
- Kellerabteil
- gemeinschaftlicher Waschraum und Trockenraum
- gemeinschaftlicher Fahrradraum
- Hausmeisterdienst
Lage
Die Eigentumswohnung befindet sich in einer verkehrsgünstigen Lage in der Nähe des Bahnhofs Götz sowie der Bundesstraße 1. Mit dem Regionalexpress RE 1 dauert die Fahrt zum Berliner Hauptbahnhof etwa 30 bis 40 Minuten. Die genaue Fahrzeit kann je nach Tageszeit und Zwischenhalten leicht variieren, doch in der Regel ist diese Verbindung schnell und bequem.
Die Gemeinde Groß Kreutz (Havel) liegt strategisch zwischen Brandenburg an der Havel und Werder (Havel), in der Nähe der Autobahnen A10 und A2. Sie verfügt über eine gut ausgebaute Infrastruktur: Verschiedene Einkaufsmöglichkeiten, Ärzte, Apotheken, Optiker sowie Schulen und Kindergärten sind leicht erreichbar und decken den täglichen Bedarf ab.
