Rückruf
Kontakt
Immobilien kaufen
Großzügige Doppelhaushälfte mit Nebengebäude, Garage und Garten
Objektart
Einfamilienhaus
Ort
Brandenburg an der Havel , Görden
Grundstück
ca. 607 m²
Wohnfläche
ca. 134,5 m²
Baujahr
1934
Zimmer
5
Zustand
Gepflegt
Heizung
Gas-Heizung
Energieausweistyp
Bedarf
Energieeffizienzklasse
G
Endenergieverbrauch
214,8 kWh/m² p.a.
Kaufpreis
245.000 €
Maklercourtage
3,57 % (inkl. MwSt.) vom Kaufpreis Käuferprovision
Beschreibung
Herzlich Willkommen in dieser großzügigen Doppelhaushälfte aus dem Jahr 1934, die 1986 durch einen Anbau erweitert wurde. Auf dem ca. 607 m² großen Grundstück befindet sich weiterhin ein Nebengebäude und eine Garage.Das charmante Wohnhaus erstreckt sich über zwei weitläufige Etagen mit wenigen Dachschrägen. Es bietet rund 135 m² Wohnfläche – ideal für Familien oder Paare, die viel Platz und Gestaltungsfreiraum suchen und im begehrten Stadtteil Görden, leben möchten.
In den Jahren 1995/1999 wurden die Fenster erneuert, die Gasheizung 1997 installiert, das Dach 1999 neu gedeckt und das Badezimmer wurde ca. 2005 renoviert.
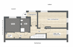
Raumaufteilung:
Erdgeschoss: großzügiges Wohn- und Esszimmer, ein kleines Gäste- oder Arbeitszimmer, ein Duschbad mit Handtuchheizkörper, Küche und Vorratsraum.
Dachgeschoss: geräumiges Schlafzimmer (früher zwei Zimmer), helles Kinderzimmer, kleines Ankleide- oder Gästezimmer, WC, Kammer und Trockenraum.
Die kleine Kammer liegt direkt neben dem WC und bietet somit die Möglichkeit für den Ausbau zu einem Badezimmer. Der ehemalige Trockenraum könnte vielleicht Ihr neuer Hobbyraum werden.
Im Nebengebäude befinden sich ein Heizung- und ein Abstellraum sowie eine Werkstatt. Die im Jahr 1995/96 massiv gebaute Garage, verfügt über ein praktisches Schwingtor und eine Tür in den Garten.
Der kleine Garten lädt mit einem überdachten Sitzplatz, Obstbäumen, Sträuchern und Stauden zum Verweilen ein – ideal für entspannte Stunden im Freien. Die Pflege des Gartens wird durch den eigenen Brunnen erleichtert. Das Grundstück ist umfriedet und nicht einsehbar, was für eine angenehme Privatsphäre sorgt.
Die Immobilie verfügt über Strom, Trink- und Abwasser, Gas sowie Telefon. Eine Glasfaserleitung liegt bereits in der Straße.
Dieses viel Platz bietende Wohnhaus mit großem Nebengebäude auf einem ansprechenden Grundstück bietet Potenzial für Ihre individuelle Gestaltung und Modernisierung.
Haben wir Ihr Interesse geweckt? Gern beantworten wir Ihre Fragen und stellen Ihnen diese tolle Immobilie bei einer Besichtigung vor.
Ausstattung
- 5 helle Zimmer
- Küche mit Fenster und separatem Vorratsraum
- Duschbad mit Handtuchheizkörper im Erdgeschoss
- weiteres WC im Dachgeschoss (Ausbaumöglichkeit vorhanden)
- Kammer und Trockenraum
- Nebengebäude (ca. 22 m²) mit Heizung- und Abstellraum, Werkstatt
- Garage mit Schwingtor und Zugang in den Garten
- kleiner Innenhof mit Pflanzeninsel
- Garten mit überdachtem Sitzplatz und Brunnen
- komplett umfriedet
- Strom, Trink- und Abwasser, Gas, Telekom (Glasfaser bereits in Straße)
Lage
Die Doppelhaushälfte befindet sich im beliebten Görden, einem charmanten Stadtteil von Brandenburg an der Havel. Die Lage zeichnet sich durch ihre ruhige und familienfreundliche Nachbarschaft aus, ideal für alle, die ein entspanntes Zuhause in einer gepflegten Umgebung suchen.
Görden bietet eine sehr gute Infrastruktur mit mehreren Supermärkten, Schulen, Kindergärten und Ärzten in der Nähe. Die Lage vereint alle Vorteile eines ruhigen Wohnviertels mit der Nähe zu städtischen Annehmlichkeiten.
Mit der Straßenbahn, die Haltestelle ist nur wenige Schritte entfernt, gelangen Sie bequem und schnell in die Innenstadt. Bis zum Bahnhof Görden sind es ebenfalls wenige Minuten. Hier verkehrt der RE 51 zum Hauptbahnhof in Brandenburg an der Havel, was eine schnelle Anbindung an die Region ermöglicht. Der RE 1 Magdeburg – Frankfurt/Oder verbindet Brandenburg an der Havel mit Potsdam und der Hauptstadtmetropole Berlin, z.B. in der Hauptverkehrszeit alle 20 Minuten.
Brandenburg an der Havel ist Titel und Lagebeschreibung der kreisfreien Stadt rund 70 km westlich von Berlin. Mit gleich drei mittelalterlichen Stadtkernen und einer über 1.000-jährigen Geschichte gibt es an allen Ecken und Enden etwas zu besichtigen und entdecken. Besuchen Sie Roland, machen Sie einen Abstecher ins Museum, lassen den Abend im Theater ausklingen oder feiern beschwingt bei einem der Stadtfeste. Ein echtes Paradies für alle Wasserfreunde ist die ausgeprägte Fluss- und Seenlandschaft rund um die Stadt, mit allerlei Möglichkeiten sich in die Fluten zu stürzen oder einfach nur die Seele baumeln zu lassen.
